Rodinný dům severní Morava

místo: severní Morava
projekt: 2015
realizace: 2017-2018
investor: soukromá osoba
fotografie: Lukáš Hausenblas

 

Zvolený pozemek se nachází na okraji malebné obce Slatinice na Olomoucku, kousek od současného bydliště stavebníků. Řešená parcela tvoří okraj zastavitelného území obce; na západní a jižní straně pozemku proto v blízké době nedojde k výstavbě.

Navržený rodinný dům představuje příjemné bydlení pro rodinu s dětmi, navržená dispozice domu bude poskytovat pohodlí a soukromí všem členům rodiny. Svým vzhledem dům zapadá do vesnického rázu okolí.

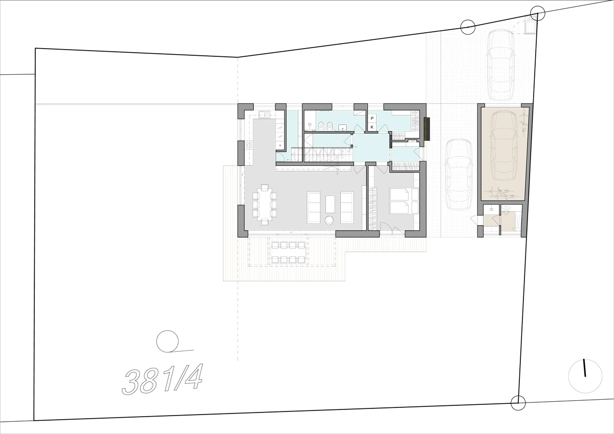
Hmota domu je umístěna do severno-východní části pozemku, kde bude zřízen nájezd na pozemek a přivedena přípojka elektřiny, vody a kanalizace. Samostatná garáž bude umístěna na hranici pozemku. Bude tím dosaženo maximálního využití zastavitelné části pozemku a zároveň ponechání co největší souvislé plochy zahrady. Pozemek je mírně svažitý směrem k východu.

Příjezd na pozemek a vstup do domu je situován na severovýchodní straně pozemku. Plocha před garáží je zpevněná a slouží k příležitostnému parkování. Pro parkování, přístup do domu a průjezd do zahrady slouží krytá část mezi garáží a domem.

 

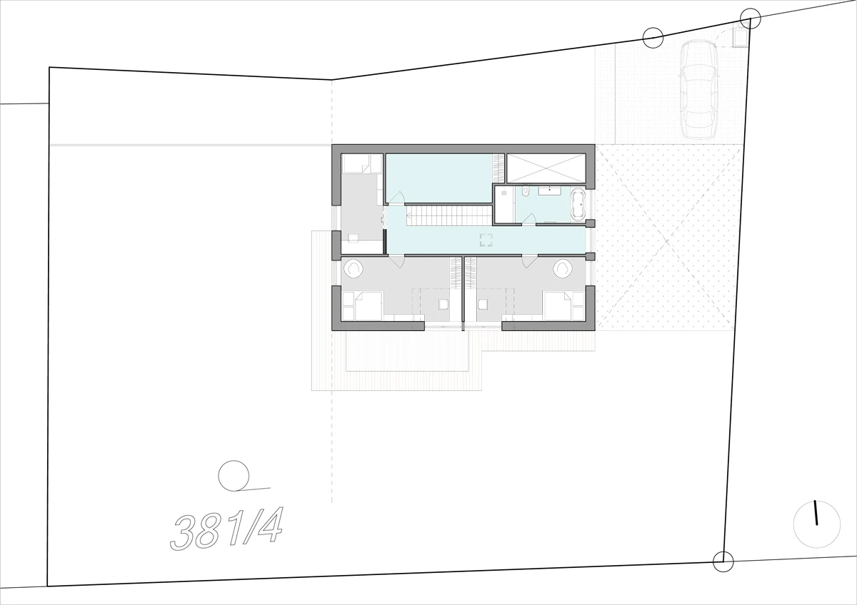
Navržený dům tvoří jednoduchá kompaktní hmota se sedlovou střechou a “dřevěný” kvádr garáže a sauny. Mezi hlavní hmotou domu a venkovním zázemím se nachází kryté parkovací stání a závětří domu. Hmota domu je prolomena vikýřem, kterým se dostává do pokoje dívek jižní slunce. Dále je dům opticky propojen s garáží dřevěným obkladem, který se nachází v prostoru mezi okny. Dům je navržen v barevné kombinaci bílá-tmavě šedá-světlé dřevo. Bílá je hmota domu; okna, okapy, pergola a střecha jsou tmavě šedé; obklady a terasa jsou tvořeny světlým dřevem (světlé dřevo se objevuje hodně i v interiéru domu).

Dům se otevírá na jih a západ, směrem za sluncem, zahradou a výhledem na panorama s kostelem.

 

Dům je určen pro rodinou se dvěma dětmi a dispozičně je rozdělen na dva celky. V přízemí jsou umístěny provozy domu, které budou využívány po celou dobu obývání domu - jak rodinou s dětmi, tak později pouze rodiči. V podkroví se nacházejí pokoje dcer a koupelna, dále sklad a malá pracovna, která může sloužit pro přespání návštěv. S užíváním podkroví po odstěhování dětí není počítáno (pouze “víkendově”).